Abala ya ha iniciado las obras del segundo centro educativo del municipio alicantino.
Catral contará para el curso escolar 2025/2026 con un nuevo Centro de Educación Infantil y Primera (CEIP) desarrollado para responder a las crecientes necesidades educativas del municipio, que hasta ahora dependía únicamente del colegio Azorín, insuficiente ante el aumento del alumnado.
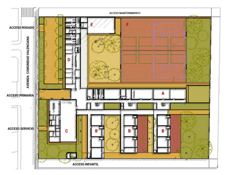
Abala ya ha iniciado las obras del nuevo CEIP, que tendrá capacidad para 2 unidades de Educación Infantil de primer ciclo, 6 unidades de Educación Infantil y 12 unidades de Educación Primaria. Además, tendrá comedor para 400 comensales en 2 turnos y un aula de Educación Especial.
Este nuevo colegio se emplazará en un terreno de unos 13.000 metros cuadrados e incluirá un edificio de Educación Infantil, un edificio de Educación Primaria, un gimnasio y espacios exteriores. La superficie construida será de 5.177 metros cuadrados, destinándose el resto de la parcela a patios de juegos y zonas ajardinadas.
Este amplio espacio al aire libre y las modernas infraestructuras serán fundamentales para favorecer una escolarización de calidad, permitiendo actividades recreativas y deportivas en un entorno seguro. La amplitud del patio no solo asegura que los niños tengan suficiente espacio para jugar y moverse libremente, sino que también facilita la organización de eventos y actividades al aire libre.
En el área destinada a Primaria se construirán 12 aulas, una sala polivalente, un gimnasio, dos pistas polideportivas, un gran patio y un comedor para 400 comensales en dos turnos.
El espacio destinado a Infantil constará de un aula específica, dos aulas para educación infantil de primer ciclo y seis aulas para el resto de los cursos. La zona de Infantil estará separada de la de Primaria, con acceso independiente y con un patio exterior propio.
El nuevo colegio está diseñado para proporcionar un entorno educativo agradable y cómodo para los alumnos. Los espacios han sido concebidos para ser completamente accesibles, asegurando que puedan adaptarse a todas las actividades escolares tanto de educación infantil como primaria. Además, las aulas y áreas interiores estarán acondicionadas para mantener una temperatura adecuada durante todo el año. De esta manera, se crea un ambiente óptimo para el aprendizaje y el desarrollo, tanto dentro como fuera del aula.
La obra se ha adjudicado por un importe de 8.510.458,72 euros y plazo de ejecución de 17 meses.



